Udkast til ny lokalplan for den gamle rådhusgrund nu til politisk behandling

Nedrivningen af det gamle rådhus i Støvring er i gang (foto Bertil Mortensen)
Efter at rådhuset i Støvring er flyttet ind i den ny bygning bag højskolen, og biblioteket om ikke så længe flytter hen i nærheden af Stubhuset, skal der vedtages en ny lokalplan for at gøre det muligt at indrette området, hvor det gamle rådhus lå, til andre formål end før.
Udkastet til en ny lokalplan skal nemlig give mulighed for at indrette den 0,8 ha store biblioteks- og tidligere rådhusgrund til såkaldt centerformål, dvs. til butikker, liberale erhverv, boliger og offentlige formål mv. Der er ønsker fra Boligselskabet Nordjylland og Rema 1000 om at bygge henholdsvis boliger og dagligvarebutik på området.

Lokalplanområdets afgrænsning (Kort © Cowi)
På oversigtsfotoet ovenfor ses, hvilket område den ny lokalplan kommer til at dække. Der vil dog i forhold til foto’et og illustrationsskitsen nedenfor ske nogle små ændringer i lokalplanområdets afgrænsning – mod vest og nord -, inden selve lokalplanforslaget sendes ud i høring.
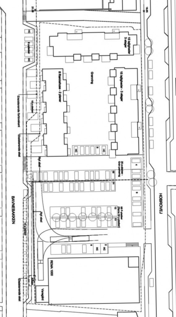
Illustrationsskitsen herunder er et eksempel på, hvordan man kan forestille sig, området bebygges. Mod syd er der placeret en dagligvarebutik og mod vest på Bavnebakken 8 rækkehuse i 2 etager i max. 8,5 m højde. Mod nord op til City Centret bliver der mulighed for at opføre en bygning i 3 etager i max. 13 m højde med 15 lejligheder, og mod øst ud til Hobrovej også en bygning i 3 etager med 15 lejligheder, men med mulighed for desuden at indrette butikker i stueetagen.

Illustrationsskitse (udsnit) af lokalplanområdet: Den store firkant nederst (syd) angiver en mulig placering af en stor dagligvarebutik, ovenover den ses en række P-pladser, mod vest på Bavnebakken er indtegnet 8 rækkehuse og mod nord og øst to etageejendomme. (Kort © Cowi)
Bygningerne skal placeres med facaden ud mod vejen, men mens rækkehusene mod vest godt må trækkes lidt tilbage fra Bavnebakken, skal bebyggelsen langs Hobrovej være placeret helt ud til vejen for at give området et egentligt bypræg.
Butikker
Butikkerne skal indrettes i stuetagen i bygningen langs Hobrovej og med kundeindgang ud til vejen. Dermed opnår man iflg. udkastet, at området opleves som en del af byens handelsmiljø.
Facaderne
Udkastet indeholder også bestemmelser om, hvordan facaderne skal se ud. De skal primært udføres som blank mur i teglsten, og byggematerialets skal have den oprindelige farve, hvid, sort eller farverne i jordfarveskalaen.
Støj
Mens den nye lokalplan ikke vurderes til at give nogen problemer mht. kulturarv, biologisk mangfoldighed, miljø, jordbund m.m., når byggeriet er færdiggjort, skal der tages skridt til at reducere det forhøjede støjniveau, der forventes at blive i området.
Støjen vil hovedsageligt komme fra to kilder.
For det første støj fra detailhandelsbutikkerne og den store dagligvarebutik – i forbindelse med varelevering, kundekørsel, ventilation m.m. Men i udkastet skønnes det, at det er muligt at indrette butikkerne, så støjen kan holdes inden for de vejledende støjgrænser.
For det andet vil den øgede trafik på Bavnebakken og især Hobrovej medføre mere støj. Derfor skal bygherren foretage støjisolering, så de vejledende støjgrænser kan overholdes.
Beslutningsprocessen
I første omgang er det Teknik- og miljøudvalget, som skal behandle lokalplanudkastet, der derefter videresendes til Økonomiudvalget og Byrådet. Hvis Byrådet godkender udkastet som et egentligt lokalplanforslag, sendes det i høring i 8 uger, inden Byrådet eventuelt vedtager det endeligt.
Man kan læse nærmere om lokalplanudkastet i Teknik- og miljøudvalgets dagsorden d. 10. juni, pkt. 126 ”Godkendelse af udkast til lokalplan 291”, som kan findes på kommunens hjemmeside,